Feuerfest
Hybridbauweise: Siebengeschossiges Wohnhaus in Berlin
Im Berliner Stadtteil Prenzlauer Berg wird in der Fehrbelliner Straße gerade das zweite siebengeschossige Wohnhaus fertig gestellt, bei dem der Baustoff Holz eine entscheidende Rolle spielt. Anders als beim mittlerweile sehr prominenten Holzhochhaus des Architekturbüros Kaden + Klingbeil besteht die Tragkonstruktion dieses Hauses entgegen der ursprünglichen Planung jedoch nicht aus Holz, sondern aus einem Stahlskelett und Stahlbetondecken. Dafür schaffte es die Architektin Susanne Scharabi, in einem langwierigen Genehmigungsverfahren auf der Hofseite eine vertikale Lärchenholzschalung durchzusetzen – das hatte es in Berlin bislang noch nicht gegeben.
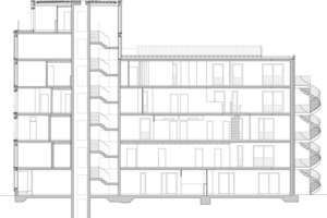
Diese Tatsache unterscheidet dann auch die beiden Holzhochhäuser im Prenzlauer Berg: Während man bei Kaden + Klingbeil zwar ein Tragwerk aus Holz baute, die Fassade aber mit einem Putz versah, ist es in der Fehrbelliner Straße genau umgekehrt: Das konventionelle Tragwerk aus Stahl und Beton mit Außenwänden in Holzrahmenbauweise erhielt zur Straße eine Verkleidung aus Faserzementplatten und zum Hof gar die gewünschte vertikale Lärchenholzschalung. Das von Susanne Scharabi entworfene Gebäude wird also auch nach der Fertigstellung den Baustoff Holz sichtbar zur Schau stellen.
Ursprünglich war es die Idee der Architektin Susanne Scharabi gewesen, in dieser Baulücke die Pioniertat des ersten Holzhochhauses in Berlin zu wagen. In der Baulücke zwischen zwei denkmalgeschützen Gebäuden aus der Gründerzeit sollte ein Neubau im „Berlin-Format“ entstehen, das sich aus dem Bebauungsplan der Stadt ergibt: Die Traufhöhe ist dort bei 22 m festgeschrieben, was für eine Wohnnutzung eigentlich immer zu sieben Geschossen führt. Der Clou: Das Haus sollte komplett aus Holz gebaut werden – ein Holztragwerk mit Holzverkleidung, in der steinernen Stadt Berlin nicht weniger als eine Pioniertat. Als Bauherr war zunächst eine Baugruppe im Gespräch, die aus ökologischen und ästetischen Gesichtspunkten von der Planung vollauf überzeugt war. Die Architektin und ihr Mann, dem das Grundstück gehörte und der dafür eigens die Bauträgergesellschaft UmBauBüro UBB gegründet hatte, entschieden sich dann aber doch, die Baulücke selbst zu bebauen, woraufhin die Baugruppe mit der Idee eines Holztragwerks das Architekturbüro Kaden + Klingbeil beauftragte … Der Rest der Geschichte ist hinlänglich bekannt und auch in BAUHANDWERK 7-8/2008 ab Seite 18 nachzulesen – das erste Holzhochhaus in Berlin, gebaut unweit des ursprünglich dafür vorgesehenen Bauplatzes für die Baugruppe e3 Bau GbR, nach einer Idee von Susanne Scharabi.
Hybridbauweise
Um die Wohnungen gut vermarkten zu können, musste die Architektin auf eine Tragkonstruktion aus Holz verzichten: Die Käufer sollten die Grundrisse frei gestalten können, so dass eine stützenfreie Konstruktion gefordert war – beim Holzhaus der Baugruppe hingegen standen die Grundrisse bereits vor Baubeginn fest, so dass einem Holztragwerk hier nichts im Wege stand. An der Fehrbelliner Straße entschied sich Susanne Scharabi schließlich für eine Stahlskelettkonstruktion mit vorgefertigten Stahlbetondecken. Die nicht tragenden Außenwände sind Holzrahmenbaukonstruktionen, die das Gebäude durch ihren guten Dämmwert – in Kombination mit dreifach verglasten Fenstern und einer Lüftungsanlage mit Wärmerückgewinnung – zum Niedrigenergiehaus machen.
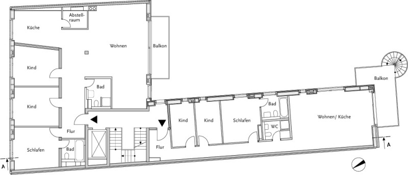
Das siebengeschossige Vorderhaus wird im Hof durch einen fünfgeschossigen Seitenflügel ergänzt. Die beiden Bauteile beherbergen insgesamt elf Wohnungen, darunter eine große Maisonettewohnung im Seitenflügel, die sich über die beiden obersten Geschosse erstreckt. Im Erdgeschoss befindet sich neben der Einfahrt zur Tiefgarage ein Ladengeschäft.
Brandschutz
Der Beginn der Bauarbeiten sollte sich jedoch noch etliche Monate hinziehen, weil das Bauamt wegen der geplanten Lärchenholzfassade im Hof die Baugenehmigung verweigerte. Der Hintergrund: Die Berliner Bauordnung erlaubt den Einsatz von Holzbekleidungen für Häuser der Gebäudeklasse 5 nicht. Also musste die Architektin ein Brandschutzkonzept erstellen und ein entsprechendes Gutachten in Auftrag geben, um einen Antrag auf Abweichung von der Berliner Bauordnung stellen zu können. Das erste Gutachten eines Ingenieurbüros reichte der Bauaufsichtsbehörde des Bezirksamtes Pankow jedoch nicht aus. Die Beamten forderten ein weiteres Gutachten einer unabhängigen Prüfanstalt, das nachweisen musste, dass die im Brandschutzkonzept aufgeführten konstruktiven Maßnahmen zur Verhinderung der Brandausbreitung an der Holzfassade mindestens die Schutzwirkung einer Fassade mit nicht brennbarer Bekleidung aufweist. Dieses zweite Gutachten wurde von der Materialprüfanstalt in Leipzig (MFPA) erstellt und erbrachte schließlich den Nachweis, dass die Aussagen des ersten Gutachtens korrekt waren.
Keller und Tiefgarage
Im März 2008 durften die Handwerker – wegen des langwierigen Genehmigungsverfahrens mit nunmehr 9 Monaten Verspätung – endlich mit den Bauarbeiten beginnen: Zunächst schachteten sie die Grube für die Tiefgarage aus, wobei die Gründung der beiden Nachbargebäude durch HDI-Hochdruckinjektionen unter den Fundamenten gesichert werden musste. Als weitere Sicherheitsmaßnahme kam eine temporäre Baugruben-umschließung oberhalb des Grundwasserspiegels, der so genannte „Berliner Verbau“, zur Ausführung. Dieser besteht aus vertikalen Stahlträgern und einer Ausfachung aus Holz oder Beton, die mit fortschreitendem Aushub eingebaut wird und das Erdreich stützt.
Da der Untergrund aus lehmigen Geschiebemergel besteht und daher drückendes Grundwasser zu erwarten war, führten die Handwerker das Kellergeschoss als Weiße Wanne aus.
Stahlskelett und vorgefertigte Betondecken
Die einzelnen Elemente des Stahlskeletts fertigte der Stahlbaubetrieb auf Basis der Werkplanung vor, so dass sie auf der Baustelle nur noch aufgestellt und miteinander verschraubt werden mussten. Für die Deckenkonstruktion wählte Architektin Susanne Scharabi eine Spannbeton-Fertigteilkonstruktion (Elbe), die in einzelnen, 18 cm dicken Betondielen angeliefert, mit dem Kran versetzt und anschließend untereinander vergossen wurden. Eine Fugenbewehrung sowie eine Randbewehrung mit Kopfbolzen sorgen für den Verbund der Elemente untereinander und auch mit der tragenden Stahlkonstruktion.
Montage der Holz
rahmenbauelemente
Auch die nicht tragenden Außenwände wurden von den Zimmerleuten in Holzrahmenbauweise (feuerhemmend F 30 B) vorgefertigt und beidseitig beplankt auf der Baustelle angeliefert. Die Größe der einzelnen Elemente richtete sich nach dem Stützenraster der Stahlskelettkonstruktion, die vom Zimmereibetrieb umseitig mit Steinwolledämmung in F 90-Qualität ummantelt wurde (siehe Zeichnung unten). So verschwanden sämtliche Stahlstützen in der Außenwand. Die dreifach verglasten Fenster baute der Fensterbaubetrieb aus sibirischer Lärche und versah die Holzteile mit einer Lasur.
Fassadenbekleidung
Obwohl die Entscheidung, die hofseitigen Fassaden mit einer vertikalen Lärchenholzschalung zu versehen, den Bauablauf erheblich verzögerte, steht Susanne Scharabi nach wie vor zu ihrer Materialwahl: „Ich will eine Holzfassade einfach nicht verputzen“, erklärt die Architektin und unterstreicht damit noch einmal deutlich ihre Affinität zum natürlichen Baustoff Holz. Dogmatisch geht sie mit dieser Präferenz jedoch nicht um: „Für die Straßenseite wären die Lärchenholzbretter zu unpassend gewesen“, so Susanne Scharabi. Hier besteht die Fassadenbekleidung aus graublauen Faserzementplatten, die das Haus sehr modern erscheinen lassen und damit einen deutlichen Kontrast zur umstehenden Gründerzeitbebauung herstellen.
Fazit
Der Holzbau befindet sich weiterhin auf dem Vormarsch – selbst in Berlin, der „steinernen Stadt“. Das ist vor allem Architekten wie Susanne Scharabi zu verdanken, die sich von einem aufwendigen und durch Gutachten auch kostspieligen Genehmigungsverfahren nicht abschrecken lassen. Nur dank dieser Beharrlichkeit war es möglich, in der Fehrbelliner Straße ein Haus der Gebäudeklasse 5 mit der gewünschten Lärchenholzschalung zu verkleiden. „Wir wollten mit dem Haus ein Referenzobjekt schaffen und den Baustoff Holz in der Fassade zeigen“, erklärt die Architektin nicht ohne Stolz. Das ist ohne Zweifel gelungen – und obendrein wurde so mit dem zweiten Holzhochhaus in Berlin der Weg für weitere Bauten dieser Art ein Stück weiter geebnet.
