Übernachten im Getreidesilo

Umnutzung des Kellogg’s Getreidesilos in Bremen zum Hotel

In Bremen ist nach Plänen des Büros Delugan Meissl Associated Architects (DMAA) aus einem Kellogg's Getreidesilo ein außergewöhnliches Hotel geworden. Hierzu betonierten die Handwerker Böden in die Siloröhren hinein und schnitten Fensterbänder in die runden, 16 cm dicken Betonwände.

„Beginnen Sie Ihren Tag mit einem gesunden Frühstück!“ So wirbt Kellogg's für seine knusprigen Cornflakes. Aber wie wäre es, wenn man dies in einem ehemaligen Getreidesilo des vor über 100 Jahren von Will Keith Kellogg gegründeten Unternehmens tun würde? Möglich ist das in der Bremer Überseestadt. Dort ist in den Betonröhren des in den 1970er-Jahren für Kellogg's erbauten Getreidesilos, in denen damals bis zu 5000 Tonnen Mais, Weizen und Hafer lagerten, ein außergewöhnliches Hotel entstanden: das John & Will Silo-Hotel by Guldsmeden.

Hotelzimmer, Bar und Büros

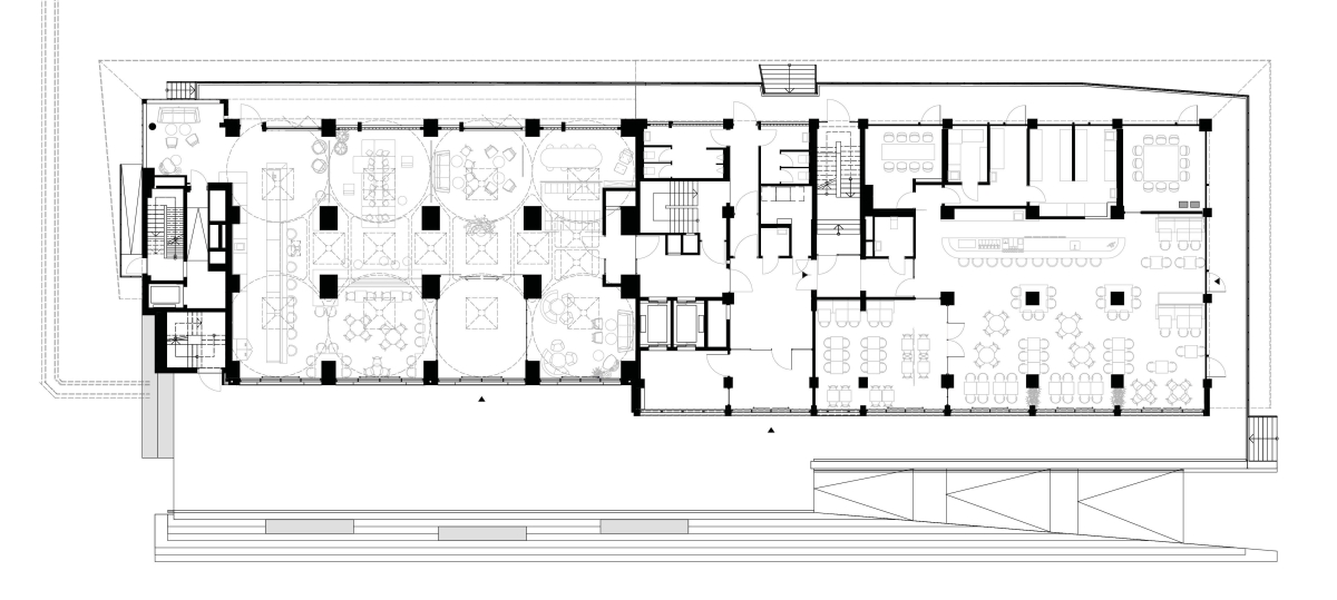
2021 begannen die Bauarbeiten. Die Planung dafür hatte die Bremer Überseeinsel GmbH als Bauherrenvertreterin und Projektentwicklerin an das Wiener Büro Delugan Meissl Associated Architects (DMAA) vergeben. Dieses schlug als neue Nutzung ein Hotel vor. Die Ausführungsplanung lag in Händen der Gruppe GME Architekten, die Bauleitung übernahm das Büro dt+p Architekten & Ingenieure GmbH. Entstanden sind in den acht rund 40 m hohen Siloröhren auf elf Geschossen 117 individuell gestaltete Zimmer mit Blick auf die Weser. Auf den Siloröhren befinden sich drei weitere Geschosse, mit denen das Gebäude eine Höhe von rund 50 m erreicht. Im untersten dieser Geschosse, dem elften Obergeschoss, wurde eine Bar mit einem 360-Grad-Rundumblick eingerichtet. Die riesigen Stahlverankerungen, die das Kellogg's-Zeichen auf dem Dach des Gebäudes tragen, blieben erhalten. Hier wurde eine komplett neue Fassade aufgebaut und mit einem flachen Kalzip-Dach abgeschlossen. Im obersten dieser Geschosse, in dem sich früher das kleine Büro des Siloaufsehers befand, wurde eine Turmsuite eingerichtet. In der Lobby im Erdgeschoss sind die alten Auslässe, unter denen früher die Zutaten für die Cornflakes gemischt wurden, als sichtbares Zeichen der einst industriellen Nutzung erhalten geblieben. Im Anbau, dem ehemaligen fünf Geschosse hohen Vitaminlager, befinden sich im Erdgeschoss ein Restaurant und darüber Büros und Konferenzräume. Das ebenfalls auf dem Gelände vorhandene einstige Reislager wird an seinem Ort und in seiner Form durch einen Neubau ersetzt, in dem sich eine Markthalle mit Gastronomie im Erdgeschoss und Büros in den Geschossen darüber befinden. Der gesamte Komplex ist eines der ersten Projekte des neuen Stadtteils Überseestadt, der auf dem ehemaligen Kellogg’s-Gelände entsteht. Die dort noch befindlichen Industriebauten sollen künftig umgenutzt und um neue Wohn- und Gewerbebauten ergänzt werden.

Baustellenlogistik

Bemerkenswert ist, dass trotz der Umnutzung die äußere Form des Silos erhalten geblieben ist. Denn die Planer standen nicht eben vor kleinen Herausforderungen. Wie sollte Tageslicht in die Siloröhren gelangen, wie sollten Böden für die neuen Geschosse darin entstehen und wie die Logistik hierfür auf der Baustelle bewerkstelligt werden?

Um Abbruchmaterial zu entfernen und neues Material für die Böden einzubringen, errichteten die Handwerkerinnen und Handwerker ein neues Treppenhaus zwischen dem Vitaminlager und den Silozylindern, das auch der Haupterschließung des Hotels dient. Hierfür waren umfangreiche Aussteifungen und Abfangungen in Stahlbauweise erforderlich. Der Materialtransport erfolgte über die Dachöffnung des Treppenhauses mit Hilfe eines 60 m hohen Turmdrehkrans.

Einschnitte

Für die neuen Fensterbänder schnitt die Firma Kamü Öffnungen in die runden 16 cm dicken Betonwände. Hierfür verwendeten sie eine von innen an der Außenwand mit Schienen befestigte Spezialsäge. „Das sind Sägen, die speziell für dieses Projekt in Holland angefertigt wurden“, erinnert sich Torben Handschuh, Leiter des Bereichs Bau bei der Überseeinsel GmbH. Die Bauarbeiter zogen die ausgeschnittenen Wandstücke mit einem Seilzug nach innen und zerlegten sie anschließend in kleinere Teile. Um im Grundriss eine sinnvolle Nutzung der Röhren als runde Hotelzimmer zu erreichen, um diese von innen her zu erschließen und nicht zuletzt, um das Betonabbruchmaterial abtransportieren zu können, schnitten die Handwerker die Betonröhren 1 bis 2 m breit auch nach innen auf. Nur im zehnten Obergeschoss gibt es größere Öffnungen nach innen. „Aus statischen Gründen war dies in den Geschossen darunter nicht möglich“, sagt Torben Handschuh.

Rund 4000 m Betonschneidearbeiten waren hierfür insgesamt erforderlich, bei denen etwa 3500 m3 Betonabbruchmaterial entstanden, das die Handwerker per Schubkarre zum neuen Treppenhaus abtransportieren mussten, wo es vom Kran herausgehievt wurde. Dabei gingen die Handwerker von unten nach oben vor. Immer wenn die Betonsägearbeiten abgeschlossen waren, wurde eine neue Decke darüber betoniert. Wenn diese ausgehärtet war, diente sie als Arbeitsebene für die Betonsägearbeiten im folgenden Geschoss.

Die Öffnungen verschlossen die Handwerker mit schlanken Metallfenstern in Dreifachverglasung. Die neuen Lichtschlitze durchbrechen den massiven Beton und eröffnen auf jeder Etage überraschende Blicke auf die Weser.

Industrieller Charme

Der Beton der Siloröhren blieb weitgehend unberührt – roh, rau und authentisch. Hier und da war partiell eine Betonsanierung erforderlich. Zum Teil waren Eisen der Betonbewehrung sichtbar oder Risse zeigten an, dass korrodierte Bewehrung unter dem Beton lag. Hier wurde eine Betonsanierung durchgeführt, deren Spuren ebenfalls sichtbar belassen wurden. Das alles verleiht auch den Hotelzimmern jenen industriellen Charme, den die erhalten gebliebenen Auslässe unter den Siloröhren in der Hotellobby bereits beim Betreten des Gebäudes vermitteln.

Fazit

Durch die Umnutzung des Kellogg's Getreidesilos auf der Bremer Überseeinsel entstand ein einzigartiges Hotel, bei dem viel vom industriellen Charme des Bestandes erhalten geblieben ist. Für diese kreative Umnutzung erhielt das Projekt nun den Sonderpreis „Umbaukultur in der zirkulären Stadt“ des Deutschen Städtebaupreises 2025 und hat damit einen ausgewiesenen Vorbildcharakter.

Autor

Dipl.-Ing. Thomas Wieckhorst ist Chefredakteur der Zeitschrift bauhandwerk.

Baubeteiligte (Auswahl)

 

Bauherr

Das Silo in Bremen GmbH, Bremen

Projektleitung und Projektsteuerung

Überseeinsel, Bremen, www.ueberseeinsel.de

Planung

Delugan Meissl Associated Architects, Wien,
www.dmaa.at

Gruppe GME Architekten, Bremen und Achim, gruppe-gme.de

Bauleitung

dt+p Architekten & Ingenieure, Bremen,
www.dtundp.de

Tragwerksplanung

Wittler Ingenieure, Bremen, www.wittler.com

Rückbauarbeiten und Schadstoffsanierung

Freimuth Abbruch und Recycling, Bülkau,
www.freimuth-abbruch.de

Rohbauarbeiten und Sanierung
(inklusive der Betonschneidearbeiten)

Kamü, Zech Bau, Bremen, www.kamue.de

Metallfensterbau

Boetker Metall + Glas, Stuhr, www.boetker.de

x

Thematisch passende Artikel:

Ausgabe 10/2025

Liebe Leserinnen, liebe Leser,

Thomas Wieckhorst, Chefredakteur der bauhandwerk, vor der Hofstelle mit Ziegelanbau in G?tersloh (ab Seite 38)

der Norden Deutschlands ist geprägt von Backsteinarchitektur. Ein Beispiel dafür ist das von 1923 bis 1925 in Hamburg erbaute Kontorhaus Stubbenhuk. In Hamburg gibt es ein ganzes Kontorhausviertel,...

mehr
Ausgabe 03/2018

Gefängnis wird Hotel in Amberg

Geb?uder?ckseite vom Wall aus gesehen: Aus dem ?ber 300 Jahre alten Amberger Gef?ngnis Fronfeste wurde ein modernes Hotel

Die Amberger Fronfeste reicht in Teilen bis ins 14. Jahrhundert zurück. Denn in einem der alle 100?m in die Stadtbefestigung eingefügten Türme baute man 1699 die ersten Zellen ein. Eine frühe...

mehr
Ausgabe 10/2017

Wasserturm in Radolfzell zum Nullenergie-Hotel umgebaut

Es ist nicht das erste Mal, dass aus einem Wasserturm ein Hotel wurde. Prominente Vorgänger sind der in Köln zum „Hotel im Wasserturm“ umgebaute Turm und der in Hamburg zum „Möwenpick Hotel“...

mehr
Ausgabe 05/2018

Ästhetische Akustikdecken im Hotel Sofitel Frankfurt Opera

Wer in der Lobby des Sofitel Frankfurt Opera Platz nimmt, genie?t die ruhige Atmosph?re unter einer schallabsorbierenden Akustikputzdecke

Im Sofitel Frankfurt Opera verspürt man französisches Flair. Das 5-Sterne-Hotel nach Plänen des internationalen De­sign­büros Studio Hertrich & Adnet empfängt seine Gäste in der Lobby mit...

mehr